ROCATION
ロケーション
ACCESS
アクセス
EQUIPMENT
設備・仕様
PLAN
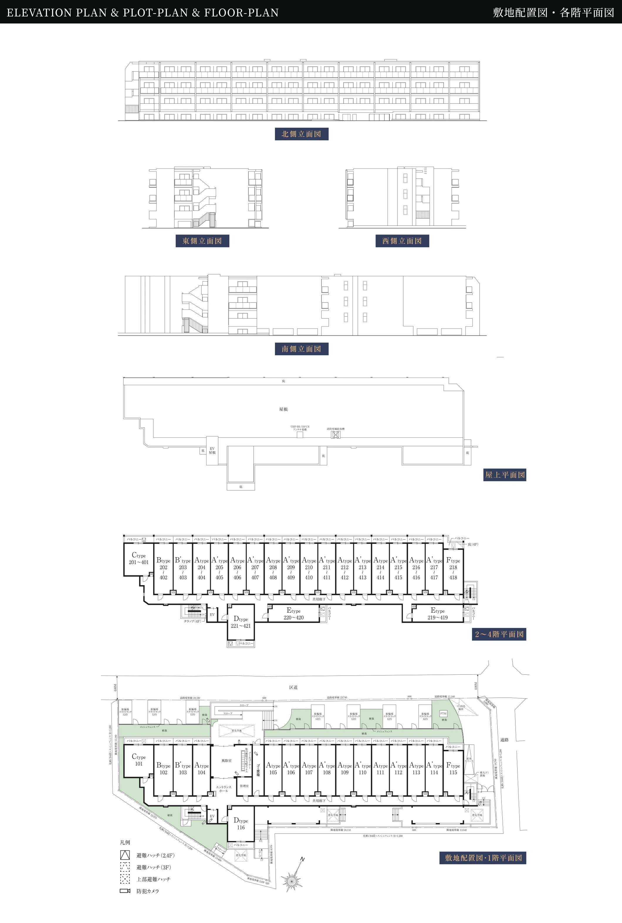
間取り
OUTLINE
物件概要
建築概要
| 名称 | レガリス中野鷺宮 |
|---|---|
| 所在地 | 東京都中野区鷺宮6丁目 |
| 住居表示 | 東京都中野区鷺宮6丁目 |
| 交通 | 西武新宿線「下井草」駅より徒歩5分 |
| 用途地域 | 第一種低層住居専用地域 |
| 地域・地区 | 準防火地域、第1種高度地区、日影規制4h-2.5h(1.5m) |
| 建ぺい率 | 49.70%(60%) |
| 容積率 | 149.60%(150%) |
| 地目 | 宅地 |
| 敷地面積 | 1,400.14㎡(実測) |
| 建築面積 | 695.82㎡ |
| 延床面積 | 2,629.52㎡ |
| 構造・規模 | 鉄筋コンクリート造 地上4階 |
| 建築確認番号 | 第GEA2411-10531号(令和6年7月31日付) |
| 総戸数 | 80戸(管理室1戸含む) |
| 販売戸数 | 75戸 |
| 間取り | 1K(75戸) |
| 専有面積 | 25.80㎡(58戸)〜27.95㎡(6戸) |
| バルコニー面積 | 3.60㎡(58戸)〜6.00㎡(3戸) |
| 竣工予定 | 2026年2月下旬 |
| 入居予定 | 2026年3月上旬 |
| 分譲後の権利形態 |
<敷地>専有面積割合による所有権の共有 <建物>専有部分は区分所有権、共用部分は専有面積割合による所有権の共有 |
| 管理形態 |
区分所有者全員により管理組合を設立し、 管理組合より管理受託者への共用部分の管理業務を委託 |
| 管理会社 | 株式会社シンエイ合人社管理 |
| 売主 | 株式会社イディアライズコーポレーション |
| 設計・監理 | 株式会社司建築設計事務所 |
| 施工 | 新英興業株式会社 |
| 設計図書閲覧場所 | レガリス中野鷺宮 管理室 |
設備概要
【共用部分】| 電気 | 東京電力パワーグリッド株式会社 |
|---|---|
| ガス | 東京ガス株式会社、各戸専用メーター設置 |
| 雨水 | 公営地下水道 |
| 汚水・雑排水方式 | 公営地下水道 |
| 給水方式 | 公営水道、各戸圧力給水方式による給水(増圧給水方式) |
| 防災・防火設備 | 自動火災報知設備、消火器、非常照明設備、誘導標式、屋内消火栓設備 |
| 防犯設備 | オートロックシステム、カラーモニター付きインターホン、防犯カメラ設置 |
| 避難設備 | 直通階段、避難ハッチ |
| エレベーター | 9人乗り・1基(45m/分) |
| TV共同視聴設備 | 屋上に地上デジタルUHF、BS/CS110°アンテナ設置 |
| メールボックス | メールコーナーに設置 |
| 宅配ボックス | メールコーナーに設置 |
| 駐輪場 | 敷地内に84台(スライドラック式) |
| ゴミ置場 | 建物内に設置 |
| 電気 | 30A(最大契約容量:40A) |
|---|---|
| ガス | 16号給湯器 |
| 給水 | キッチン、洗面化粧台、洗濯機置場、浴室、トイレに供給 |
| 給湯 | キッチン、洗面化粧台、浴室に供給 |
| 防犯・防災 | カラーモニター付インターホン、ドアダブルロック、ドアスコープ、ドアガード、防犯マグネットセンサー(1階のみ)、自動火災報知器 |
| 換気 | キッチン:レンジフードによる強制換気、サニタリー・浴室:24時間換気機能付浴室暖房乾燥機による親子換気 |
| 冷暖房設備 | 1基設置 |
| 照明設備 | 玄関、廊下、キッチン、サニタリー、浴室に照明器具設置 |
| 電気 | 各住戸にコンセント設置 |
| 電話 | UCOM光 IP電話サービス(別途契約) |
| テレビ設備 | 各住戸にTV用アウトレット設備 |
| インターネット | UCOM光(月額利用料は管理費に含まれます) |
| キッチン | システムキッチン、2口ガスコンロ |
| サニタリー | 洗面化粧台、防水パン、洗浄便座付便器、ペーパーホルダー、タオル掛、棚板 |
| 浴室 | ユニットバス(浴室暖房換気乾燥機付)A・E・Ftype:1116、B・C・Dtype:1418 |
| その他 | カーテンレール、ピクチャーレール、クローゼット、物干金物 |